Mieszkanie 3pok, 59,43m2 z ogrodem 23,62m2 + miejsce w garażu/ Brochów Wrocław
Wrocław / Krzyki Pokaż na mapie ›
Dodane: Piątek, 20 Marzec, 2026 16:26
659 673 zł
11181 zł/m2
Szczegóły ogłoszenia
- Kategoria: Mieszkania / Sprzedaż
- Powierzchnia:59 m2
- Liczba pokoi:3 pokoje
- Zabudowa:Blok
- Liczba pięter:3 piętra
- Rynek:Pierwotny
- Rok budowy:2026
- Sprzedaż:Pośrednik
- Cena: 659 673 zł / 11181 zł/m2
Opis oferty
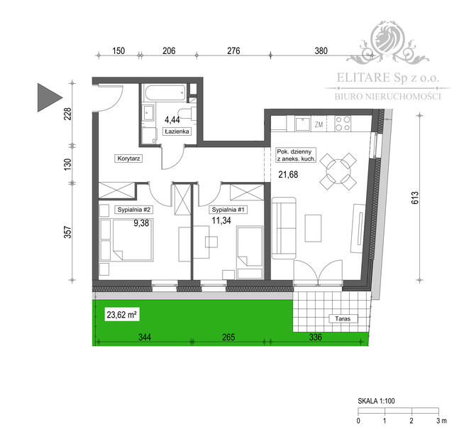
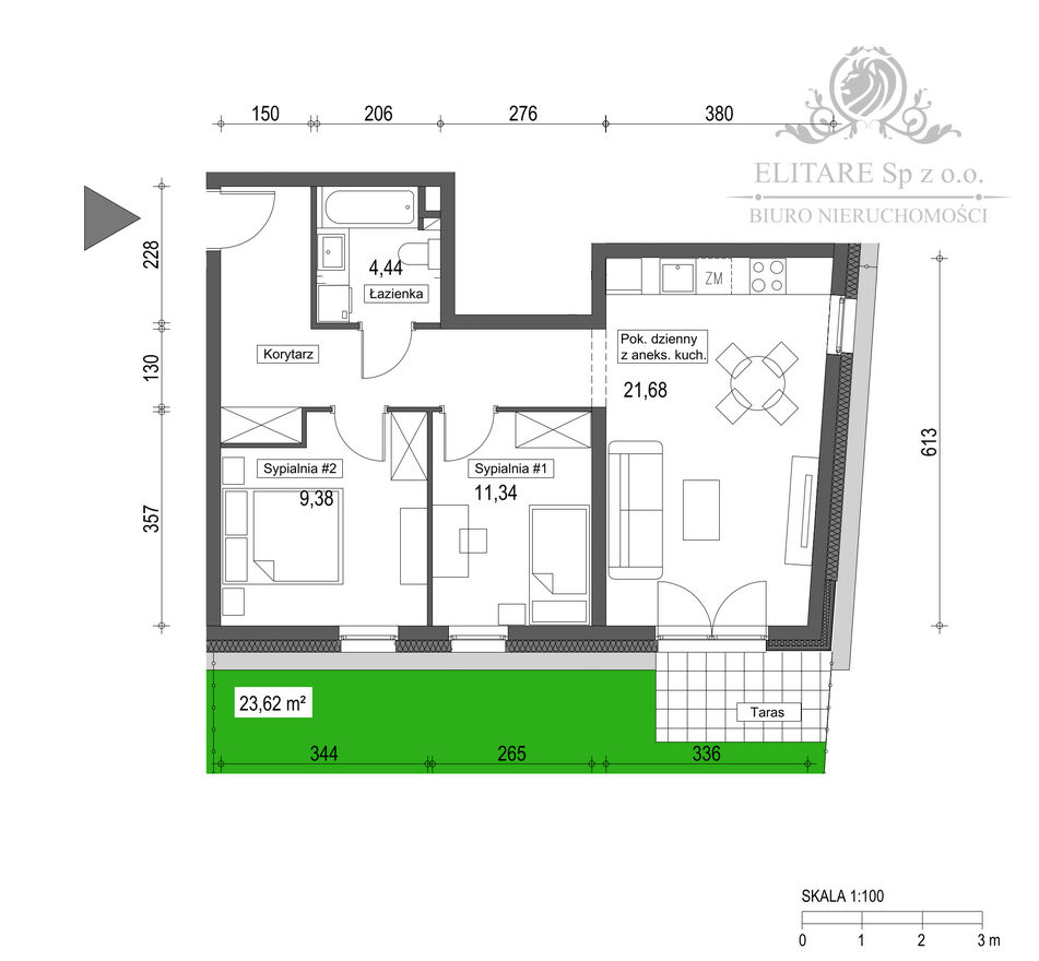
Fajne, duże mieszkanie 3 pokojowe, narożne o powierzchni 59,43m2 z ogrodem – inwestycja znajduje się we Wrocławiu na zielonym, spokojnym Brochowie - to podzielnica Krzyków w południowej części Wrocławia.Mieszkanie jest rozkładowe, 3 pokojowe ma pow. 59,43 m2 znajduje się na parterze w 3 piętrowym bloku z windą. Główna część mieszkania stanowi salon o pow. 21,68m2 z kuchnią w aneksie z salonu wyjście na ogród o pow. 23,62m2. W mieszkaniu są też dwa oddzielne pokoje o pow. 11,34m2 i 9,38m2, jest też łazienka z toaletą o pow. 4,44m2 i przedpokoju z miejscem na szafę w zabudowie. Wszystkie media miejskie włącznie z ogrzewanie miejskie!
Miejsce postojowe w garażu podziemnym w cenie:
- pojedyncze 40.000zł
- podwójne zależne 57.000zł.
Lokalizacja to wrocławski Brochów, gdzie króluje jeszcze dużo terenów zielonych świetnych na spacery i na podmiejski wypoczynek. To osiedle tworzone z myślą o najlepszym wykorzystaniu właśnie przyrody wokół, umiejscowione jest pomiędzy dwoma parkami – Bieńkowickim i Na Skraju. Zaledwie 16 minut zajmie dojście do Aqua Parku Brochowskiego, a 20 minut do stacji kolejowej Brochów - dojazd do Dworca Głównego koleją to 6mniut! Inwestycja jest również w zasięgu komunikacji miejskiej autobusowej 600m od przystanku.
Mieszkanie w bloku z II etapu inwestycji w trakcie realizacji z terminem na IV kwartł-2025 – mieszkanie przekazywane jest w stanie deweloperskim do własnej aranżacji. Zaletą zakupu na tym etapie jest duży wybór mieszkań – interesuje Panią/Pana większe mniejsze mieszkanie zapraszam do kontaktu zainteresowanych klientów. Zakup od dewelopera bezpieczną umową deweloperską bez PCC i bez prowizji. Zapraszam na prezentacje na inwestycji.
Ania Cieślak- Doradca klienta
Zadzwoń, napisz maila
tel. 535 - pokaż numer telefonu -
@
Nr oferty 26/AC
Zamieszczone na naszych stronach informacje nie stanowią oferty w rozumieniu Kodeksu Cywilnego, a dane w nich zawarte mają jedynie charakter informacyjny.
OFERTA CENOWA AKTUALNA NA DZIEŃ 20.03.2026 I OBOWIĄZUJE DO DNIA 20.03.2026
Sprawdź zainteresowanie tym ogłoszeniem
Wyświetlenia
Data dodania
Ostatnio widziany
Obserwujących
Wysłane zapytania
Odsłony telefonu
Powiadom o podobnych ogłoszeniach
Lokalizacja: Wrocław
Kategoria: Nieruchomości » Mieszkania » Sprzedaż
Cena: od 560500 zł do 758500 zł Powierzchnia : od 50 m2 do 68 m2
Chcę otrzymywać powiadomienia o nowych ofertach
- Wypromuj ogłoszenie
- Zgłoś naruszenie
- Drukuj ulotkę
- Edytuj/usuń ogłoszenie
- Udostępnij ogłoszenie
- Dodaj na Facebook
































