Mieszkanie Wrocław Krzyki
Wrocław / Krzyki Pokaż na mapie ›
Odświeżone: Sobota, 07 Marzec, 2026 16:12
790 000 zł
10822 zł/m2
Szczegóły ogłoszenia
- Kategoria: Mieszkania / Sprzedaż
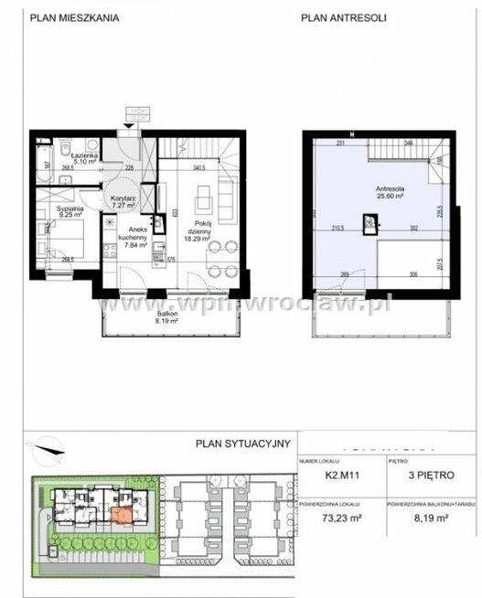
- Powierzchnia:73 m2
- Liczba pokoi:3 pokoje
- Zabudowa:Blok
- Piętro :3 piętro
- Liczba pięter:3 piętra
- Rynek:Pierwotny
- Rok budowy:2025
- Sprzedaż:Pośrednik
- Cena: 790 000 zł / 10822 zł/m2
Opis oferty
Przedstawiamy Państwu nowe mieszkania- bezpośrednio od dewelopera
- bez podatku PCC
- bez prowizji dla Kupującego
Polecam Państwu wyjątkowe 3 pokojowe mieszkanie o powierzchni użytkowej 73,23m 2 + duży balkon
Lokal znajduje się na 3 piętrze trzypiętrowego budynku.
W skład mieszkania wchodzą:
I poziom
- salon z aneksem kuchennym z wyjściem na balkon
- sypialnia
- łazienka z WC
- przedpokój z miejscem na szafę w zabudowie
II poziom
- mamy tu otwartą przestrzeń o pow. 25,6 mkw do własnej aranżacji
Nowoczesne osiedle zlokalizowane w zacisznej i spokojnej okolicy Wrocławia z bardzo dobrym dojazdem do centrum miasta. Z dala od ruchliwych ulic i codziennego zgiełku, w zacisznej przestrzeni nieopodal ulicy Opolskiej powstaje kameralny budynek. Inwestycja ta będzie idealnym miejscem do życia dla osób ceniących komfort, spokój, prywatność i nowoczesny styl.
Lokalizacja osiedla zapewnia przede wszystkim odpoczynek od ścisłego centrum miasta. Księże Wielkie to jedna z najbardziej zielonych dzielnic Wrocławia. Sąsiadujące tereny to m.in. Park Wschodni, liczne ścieżki spacerowe i rowerowe, most kilometrowy - najdłuższa w Polsce kładka dla pieszych i rowerzystów, z którego rozpościerają się przepiękne widoki.
Życie codzienne ułatwiają liczne punkty:
Usługowe (medyczne, apteki)
Handlowe (markety)
Gastronomiczne (bistro, pizzeria)
Przestrzenie dla dzieci (sala zabaw, place zabaw)
Edukacja (szkoła podstawowa, przedszkole) Istnieje możliwość wykończenia mieszkania pod klucz. Dzięki temu każdy realizowany projekt jest przygotowywany w sposób indywidualny, zgodny z oczekiwaniami inwestora, co gwarantuje unikatowy efekt końcowy.
Termin realizacji: mieszkanie gotowe do odbioru
Nr. Oferty w biurze: WPN-MS-1 433
UWAGA! Kupujący nie płaci prowizji dla biura.
Kupujący zwolniony jest również z 2% podatku!
Zainteresowała Cię ta oferta?
Jeszcze dziś umów się na spotkanie i bezpłatną prezentację! To nic nie kosztuje. Zadzwoń!
W naszej ofercie posiadamy wiele innych mieszkań na tej i innych inwestycjach.
Napisz czego poszukujesz a znajdziemy najlepsze oferty dla Ciebie.
Opiekun oferty: Wioletta Pawlicka
Tel: 601 - pokaż numer telefonu - , 601 - pokaż numer telefonu -
WP NIERUCHOMOŚCI
www.wpn.wroclaw.pl
E-mail: @
@
Współpracujemy z 20 bankami co pozwala naszym klientom uzyskać optymalne warunki finansowania nieruchomości! Nasi doradcy kredytowi całkowicie bezpłatnie pomogą uzyskać najlepszy kredyt oraz szybko, sprawnie i skutecznie przeprowadzą Cię przez procedurę kredytową.
Powyższe ogłoszenie nie stanowi oferty handlowej w rozumieniu art. 66 & 1 kodeksu cywilnego oraz innych właściwych przepisów prawnych.
Adres www oferty
www.triadadom.pl
Oferta wysłana z systemu Galactica Virgo
Numer oferty: WPN-MS-1433-3
Sprawdź zainteresowanie tym ogłoszeniem
Wyświetlenia
Data dodania
Ostatnio widziany
Obserwujących
Wysłane zapytania
Odsłony telefonu
Powiadom o podobnych ogłoszeniach
Lokalizacja: Wrocław
Kategoria: Nieruchomości » Mieszkania » Sprzedaż
Cena: od 671500 zł do 908500 zł Powierzchnia : od 62 m2 do 84 m2
Chcę otrzymywać powiadomienia o nowych ofertach
- Wypromuj ogłoszenie
- Zgłoś naruszenie
- Drukuj ulotkę
- Edytuj/usuń ogłoszenie
- Udostępnij ogłoszenie
- Dodaj na Facebook












