Wrocław Fabryczna 3 pokoje - Nowe budownictwo
Wrocław / Fabryczna Pokaż na mapie ›
Ogłoszenie archiwalne Wygasło: Czwartek, 12 Luty, 2026 10:54
829 000 zł
12014 zł/m2
Szczegóły ogłoszenia
- Kategoria: Mieszkania / Sprzedaż
- Powierzchnia:69 m2
- Liczba pokoi:3 pokoje
- Zabudowa:Apartamentowiec
- Tech. budowy:Pustak
- Piętro :2 piętro
- Liczba pięter:4 piętra
- Rynek:Wtórny
- Rok budowy:2008
- Stan:Do zamieszkania
- Forma kuchni:Aneks
- Sprzedaż:Pośrednik
- Inf. dodatkowe:Balkon, Piwnica
- Cena: 829 000 zł / 12014 zł/m2
- Ulica: Gosławicka
Opis oferty
Tylko u nas! Oferta na wyłączność.Duże przestronne mieszkanie z zabudowaną loggią. Mieszkanie 3 pokojowe o powierzchni 69m2 z szybkim dojazdem do Magnolia Park i Rynku. Cicha bezpieczna i spokojna okolica. Nieruchomość znajduje się na zadbanym osiedlu ze świetną komunikacją tramwajową z centrum miasta. Blisko: szkoły, przedszkola, żłobki, sklepy, centrum handlowe. Szybka komunikacja z: lotnisko, AOW, Magnolia Park, IBM Park, Wrocławski Park Technologiczny, Rynek.
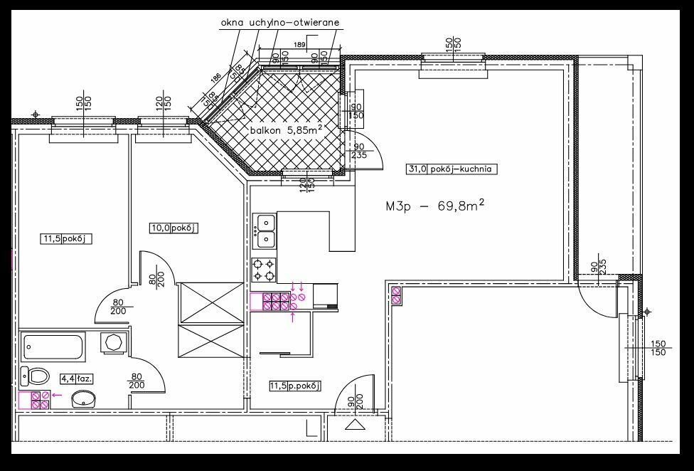
Układ mieszkania (zobacz rzut 3D):
- salon z aneksem kuchennym z wyjściem na zabudowaną loggie
- sypialnia,
- sypialnia,
- przedpokój,
- łazienka z wc,
Do mieszkania przynależy komórka lokatorska (w cenie mieszkania).
Opis nieruchomości.
Duże przestronne mieszkanie, z szybką komunikacją z centrum miasta. Centralną częścią mieszkania jest salon o powierzchni 31 m2 z wyjściem na zabudowaną loggie. Dwie oddzielne sypialnie (po ok 11m2). Loggia świetnie nadaje się na biuro do pracy.
Standard wykończenia:
Instalacje: miedziana, okna PCV, ogrzewanie miejskie. Kuchnia wyposażona w zabudowie (płyta indukcyjna, lodówka z zamrażarką, zmywarka), w pełni wyposażona, mniejsza sypialnia połączona z garderobą, logia zabudowana. Łazienka przestronna z wanną i dodatkowymi podświetleniami.
Obecnie mieszkanie jest wynajmowane długoterminowo. Możliwość przejęcia umowy wraz z najemcami.
Biuro nieruchomości Wrocław.
Poszukujesz mieszkania dla siebie lub pod wynajem? Planujesz sprzedać nieruchomość we Wrocławiu lub okolicy? Zobacz pełną ofertę naszej firmy na stronie internetowej. Nasze biuro nieruchomości współpracuje z klientami z Polski i z zagranicy. Oferujemy kompleksową obsługę nieruchomości w zakresie sprzedaż nieruchomości oraz ich wynajmu (marketing, prezentacje, obsługa posprzedażowa). Szczegółowych informacji udzielamy pod numerem telefonu z ogłoszenia.
Polecam i zapraszam na prezentacje w tygodniu i na weekendy.
Cena | Price: 829 000 zł - do indywidualnych negocjacji.
Agencja nieruchomości premium:
Michał Banaszak
Dakid Trade Sp. z o.o.
Powstańców Śląskich 7A Street
Wroclaw | Poland
Sprawdź zainteresowanie tym ogłoszeniem
Wyświetlenia
Data dodania
Ostatnio widziany
Obserwujących
Wysłane zapytania
Odsłony telefonu
Powiadom o podobnych ogłoszeniach
Lokalizacja: Wrocław
Kategoria: Nieruchomości » Mieszkania » Sprzedaż
Cena: od 704500 zł do 953500 zł Powierzchnia : od 59 m2 do 79 m2
Chcę otrzymywać powiadomienia o nowych ofertach
- Wypromuj ogłoszenie
- Zgłoś naruszenie
- Drukuj ulotkę
- Edytuj/usuń ogłoszenie
- Udostępnij ogłoszenie
- Dodaj na Facebook






















