Schuberta | Luksusowy Apartament | Rozkład/Balkon
Wrocław Pokaż na mapie ›
Dodane: Piątek, 06 Luty, 2026 02:00
755 000 zł
11439 zł/m2
Szczegóły ogłoszenia
- Kategoria: Mieszkania / Sprzedaż
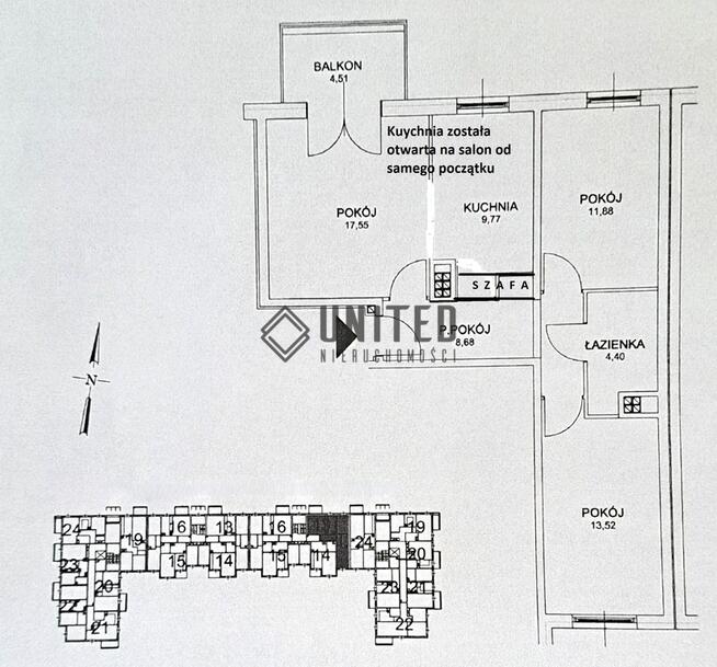
- Powierzchnia:66 m2
- Liczba pokoi:3 pokoje
- Zabudowa:Apartamentowiec
- Tech. budowy:Silikat
- Piętro :3 piętro
- Liczba pięter:3 piętra
- Rynek:Wtórny
- Rok budowy:2014
- Sprzedaż:Pośrednik
- Inf. dodatkowe:Balkon
- Cena: 755 000 zł / 11439 zł/m2
Opis oferty
PRZESTRONNE | JASNE | KOMFORTOWE – 3 POKOJE NA JAGODNIE!65,8 m² | Balkon | Garaż | Spokojna Zielona Okolica
Szukasz mieszkania, które łączy przestrzeń, prywatność i
świetną lokalizację?
Brak sąsiadów zaglądających do okien, dużo zieleni i komfortowy
układ sprawiają, że to idealne miejsce dla rodziny lub inwestora!
LOKALIZACJA – WSZYSTKO W ZASIĘGU RĘKI!
✔ Stacja kolejowa Iwiny – 350 m (szybki dojazd do centrum
Wrocławia)
✔ Przychodnia, paczkomaty – 150 m
✔ Przystanki autobusowe – 550 m
✔ Market spożywczy – 600 m
✔ Aquapark – 2 km
✔ Wschodnia Obwodnica Wrocławia – szybki dojazd do każdej
części miasta!
MIESZKANIE (65,8 m²)
✔ Przestronny salon z aneksem kuchennym – 28 m²
✔ Sypialnia – 13,5 m²
✔ Pokój – 11,5 m²
✔ Łazienka – 4,5 m²
✔ Przedpokój – 10 m²
✔ Balkon – 4,5 m²
DLACZEGO WARTO?
✅ Maksimum prywatności – brak okien naprzeciwko!
✅ Balkon – dodatkowa przestrzeń do relaksu
✅ Osobna KW na garaż – możliwość zakupu lub sprzedaży
oddzielnie
✅ Bezpieczeństwo – drzwi antywłamaniowe, wideodomofon
✅ Ogrzewanie – osiedlowa kotłownia gazowa
✅ Światłowód w mieszkaniu
ZAPRASZAM NA BEZPŁATNĄ PREZENTACJĘ!
Cena: 755 000 zł
nr oferty : 11128/10630/OMS
Przy zakupie otrzymasz wsparcie w uzyskaniu finansowania na zakup
nieruchomości.
Phone: +48 533 - pokaż numer telefonu -
Bernadetta Bogunia
Specjalista ds. Sprzedaży Nieruchomości
Agencja UNITED Nieruchomości | ul. Młynarska 14/E | 51-116 Wrocław
|
Sprawdź zainteresowanie tym ogłoszeniem
Wyświetlenia
Data dodania
Ostatnio widziany
Obserwujących
Wysłane zapytania
Odsłony telefonu
Powiadom o podobnych ogłoszeniach
Lokalizacja: Wrocław
Kategoria: Nieruchomości » Mieszkania » Sprzedaż
Cena: od 642000 zł do 868500 zł Powierzchnia : od 56 m2 do 76 m2
Chcę otrzymywać powiadomienia o nowych ofertach
Łukasz Matuszewski
Konto firmowe
Na Lento.pl od 13 paź 2020
Strona użytkownika
- Wypromuj ogłoszenie
- Zgłoś naruszenie
- Drukuj ulotkę
- Edytuj/usuń ogłoszenie
- Udostępnij ogłoszenie
- Dodaj na Facebook



















