REZERWACJA/Apartament 46,66m2, 2 pok. w Centrum Wrocławia/Stare Miasto, Szczepin
Wrocław / Stare Miasto Pokaż na mapie ›
Dodane: Niedziela, 21 Grudzień, 2025 23:07
932 734 zł
20277 zł/m2
Szczegóły ogłoszenia
- Kategoria: Mieszkania / Sprzedaż
- Powierzchnia:46 m2
- Liczba pokoi:2 pokoje
- Zabudowa:Apartamentowiec
- Piętro :4 piętro
- Liczba pięter:Wieżowiec
- Rynek:Pierwotny
- Rok budowy:2025
- Sprzedaż:Pośrednik
- Cena: 932 734 zł / 20277 zł/m2
Opis oferty
REZERWACJA OFERTYApartament w stanie deweloperskim, w gotowej inwestycji we Wrocławiu w nowym prestiżowym budynku i w świetnej lokalizacji tuż przy rzece Odrze i ul. Sikorskiego. Znajduje się na 4 piętrze w 23 piętrowym apartamentowcu – budynek wykończony w najwyższym standardzie, posiada trzy poziomy garażowe, 3 windy oraz reprezentacyjny holl wejściowy z recepcją. Apartamentowiec niewątpliwe wyróżnia się klasą i elegancją. Idealne miejsce dla osób ceniących sobie komfort życia i wygodę lub swoje inwestycje lokują w apartamenty premium.
APARTAMENT:
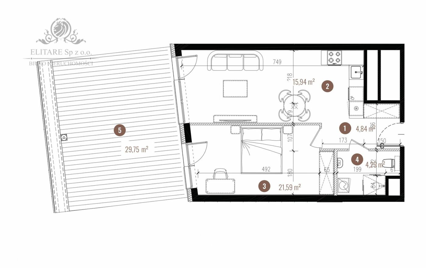
Ma powierzchnię 46,66m2 i składają się:
CZĘŚĆ DZIENNA:
– salon z jadalnią i kuchnią w aneksie o pow. 21,59m2 w salonie mamy wyjście na niesamowity taras o powierzchni aż 29,75m2,
– w części dziennej przewidziany jest aneks kuchenny z sugerowaną częścią jadalną oddzielającą go od salonu
– łazienka o pow. 4,29m2,
CZĘŚĆ PRYWATNA:
– to sypialnia o pow.15,94m2 z miejscem na szafę w zabudowie i również z wyjściem na taras.
Apartament jest w stanie deweloperskim do własnej aranżacji, przykładowa aranżacja indyczego układu powierzchni jest na zdjęciach z mieszkania pokazowego.
Obowiązkowo i absolutne „must have” to miejsca parkingowe w cenie 75.tyś.
BUDYNEK:
Apartamentowiec, w którym znajduje się sprzedawane mieszkanie to część mieszkalna ultra nowoczesnego projektu mixed-use we Wrocławiu, zlokalizowany tuż przy Odrze. Projekt odpowiada na potrzeby nawet najbardziej wymagających klientów. W kompleksie znajdziemy drugi najwyższy budynek we Wrocławiu z tarasem widokowym na 35 piętrze! – obecnie jest w trakcie budowy. Apartamentowiec z częścią mieszkalną ma równie imponującą wysokość 73m co daje aż 23 piętra w tym trzy piętra garaży . Cały kompleks to apartamenty, biura i lokale handlowo-usługowe z dostępem do terenów zielonych, nadrzecznych bulwarów i tarasów, które stanowią przyjazną przestrzeń do pracy, życia i wypoczynku. Na poziomie właśnie czwartej kondygnacji zaprojektowano tarasy i zielone przestrzenie, które będą kameralnie wydzielone dla mieszkań na 4 piętrze oraz w częściach środkowych dostępne dla mieszkańców, w apartamentowcu mamy też nowoczesne reprezentacyjne lobby, trzy windy, i wiele innych atutów, które robią z tego kompleksu modne i pożądane miejsce do życia i wynajmu!
LOKALIZACJA:
Kompleks powstaje bezpośrednio przy Odrze w prestiżowej lokalizacji, zaledwie 10 minut spacerem od wrocławskiego Rynku.
FORMALNOŚCI:
Zakup od dewelopera z rynku pierwotnego, bez podatku PCC i bez prowizji do Biura. W przypadku kredytowania jest możliwość podpisania umowy rezerwacyjnej z wpłatą 1% ceny lokalu. Mieszkanie jest Gotowe - oddane do użytkowania
Zapraszam na prezentacje.
Ania Cieślak- Doradca klienta
tel. 535 - pokaż numer telefonu -
@
Nr oferty 33/AC
Zamieszczone na naszych stronach informacje nie stanowią oferty w rozumieniu Kodeksu Cywilnego, a dane w nich zawarte mają jedynie charakter informacyjny.
OFERTA CENOWA AKTUALNA NA DZIEŃ 21.12.2025 I OBOWIĄZUJE DO DNIA 21.12.2025
Powiadom o podobnych ogłoszeniach
Lokalizacja: Wrocław
Kategoria: Nieruchomości » Mieszkania » Sprzedaż
Cena: od 793000 zł do 1072500 zł Powierzchnia : od 39 m2 do 53 m2
Chcę otrzymywać powiadomienia o nowych ofertach
- Wypromuj ogłoszenie
- Zgłoś naruszenie
- Drukuj ulotkę
- Edytuj/usuń ogłoszenie
- Udostępnij ogłoszenie
- Dodaj na Facebook
































