Piękne mieszkanie 3pokojowe z ogródkiem w zielonej i spokojnej okolicy
Wrocław / Krzyki Pokaż na mapie ›
Dodane: Poniedziałek, 24 Listopad, 2025 18:29
782 455 zł
11855 zł/m2
Szczegóły ogłoszenia
- Kategoria: Mieszkania / Sprzedaż
- Powierzchnia:66 m2
- Liczba pokoi:3 pokoje
- Zabudowa:Dom
- Liczba pięter:5 pięter
- Rynek:Pierwotny
- Rok budowy:2025
- Sprzedaż:Pośrednik
- Cena: 782 455 zł / 11855 zł/m2
Opis oferty
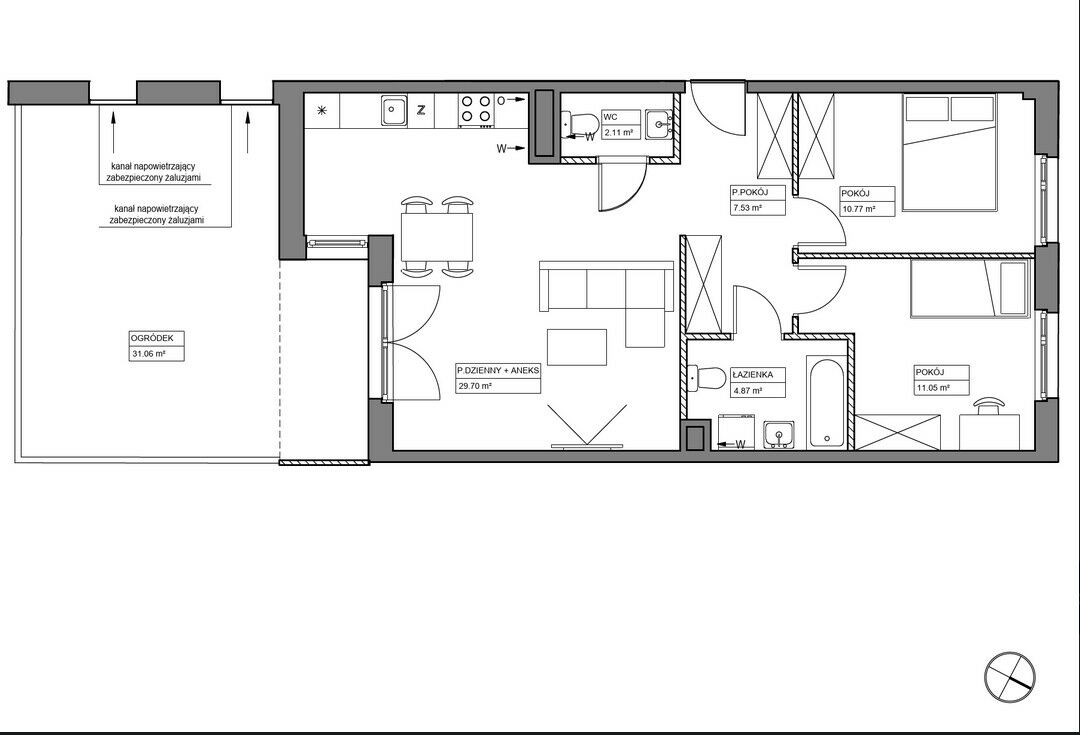
To wyjątkowe miejsce na wrocławskiej mapie nieruchomości, które idealnie łączy w sobie nowoczesność i wygodę. Młodych ludzi przyciąga tu zarówno doskonała komunikacja z centrum Wrocławia, jak i bliskość terenów rekreacyjnych oraz ścieżek rowerowych. To również wymarzona dzielnica dla rodzin z dziećmi, które odnajdą tu parki, sklepy, szkoły i miejsca rozrywki.-Prezentowane mieszkanie ma powierzchnię 66,03 m2 i znajduje się na parterze w 5 piętrowym budynku a jego główne cechy to- przestronny salon z aneksem kuchennym o powierzchni 29,70m2 z wyjściem na ogród o powierzchni 31,06m2, 2 sypialnie powierzchniach 11,05m2 i 10,77m2, przedpokój o powierzchni 7,53m2 oraz łazienka o powierzchni 4,87m2 i toaleta o powierzchni 2,11m2.
Projekt, łączy w sobie walory estetyczne z optymalną funkcjonalnością wnętrz.- Ogrzewanie miejskie.- Elewacja budynku wykończona płytką klinkierową, a na parterze indywidualnie zaprojektowane, reprezentacyjne lobby wejściowe.-Wiele rozwiązań wspierających środowisko naturalne i przyczyniających się do zmniejszenia zużycia energii, m.in. panele fotowoltaiczne i oświetlenie LED.-Miejsca do ładowania samochodów elektrycznych, alejki wykonane z kostki antysmogowej. Inwestycję wyróżni efektowny mural. Dzięki użyciu farby antysmogowej przyczyni się on do poprawy jakości powietrza poprzez redukcję szkodliwych substancji.-Smart House firmy Keemple.-Instalacja światłowodowa.-Wysokiej jakości antywłamaniowe drzwi wejściowe oraz wideofony a osiedle będzie chronione i monitorowane.-Rolety przeciwsłoneczne sterowane elektrycznie w mieszkaniach na parterze.-Pomieszczenie rowerowe wyposażone w stojaki lub wieszaki na rowery.- Brama garażowa z systemem automatycznego dostępu przez rozpoznanie numerów tablic rejestracyjnych.
Lokalizacja naszej inwestycji to prawdziwy skarb. Bliskość Parku Wschodniego i Parku Tarnogajskiego daje Ci nieograniczone możliwości spędzania wolnego czasu na świeżym powietrzu. Spacerując po malowniczych alejkach, możesz cieszyć się zielenią, relaksować się na piknikach czy uprawiać sport w otoczeniu natury. Wśród zieleni Parku Wschodniego można spotkać malownicze stawy, które przyciągają różnorodne ptactwo. Ponadto, park słynie z unikatowych roślin, a jego szczególną atrakcją jest Kwitnąca Aleja - miejsce, gdzie wiosną i latem kwitną tysiące drzew i krzewów, tworząc zapierający dech w piersiach krajobraz.Mieszkańcy Tarnogaju mogą korzystać z dobrze rozwiniętej sieci komunikacji publicznej, która zapewnia łatwy dostęp do tramwajów i autobusów, umożliwiając sprawną i wygodną podróż do centrum miasta, bez konieczności korzystania z własnego samochodu. Dzięki doskonałej lokalizacji, mieszkańcy mogą cieszyć się ciszą i spokojem i najbliższej okolicy, korzystając jednocześnie z atrakcji i udogodnień oferowanych przez dynamiczne centrum Wrocławia.
Termin realizacji inwestycji 2025-09-30-Cena brutto m. p. w garażu podziemnym: 40 000 zł-zakup obligatoryjny do mieszkań 2 pokojowych i większych.- Do kawalerek i mieszkań 2 pokojowych obligatoryjny zakup boksów 3500m2- Do mieszkań 3 pokojowych obligatoryjny zakup komórki lokatorskiej 4 000m2
Zapraszam do kontaktu w celu przygotowania oferty / umówienia się na prezentacje – Kupujący nie płaci prowizji.
Zapewniam
- profesjonalną obsługę, gwarantowaną wieloletnim doświadczeniem w branży nieruchomości-możliwość bezpłatnej rezerwacji apartamentu
- kompleksowe wsparcie na każdym etapie transakcji
- gwarancję bezpiecznego zakupu
- oszczędność czasu
-pomoc w uzyskaniu kredytu na najlepszych warunkach
- kompleksowe doradztwo
Ania Kamuda- Doradca klienta
tel. 535 - pokaż numer telefonu -
@
Nr oferty PTR /A/0/4/AK
Zamieszczone na naszych stronach informacje nie stanowią oferty w rozumieniu Kodeksu Cywilnego, a dane w nich zawarte mają jedynie charakter informacyjny.
OFERTA CENOWA AKTUALNA NA DZIEŃ 23.10.2025 I OBOWIĄZUJE DO DNIA 23.10.2025
Sprawdź zainteresowanie tym ogłoszeniem
Wyświetlenia
Data dodania
Ostatnio widziany
Obserwujących
Wysłane zapytania
Odsłony telefonu
Powiadom o podobnych ogłoszeniach
Lokalizacja: Wrocław
Kategoria: Nieruchomości » Mieszkania » Sprzedaż
Cena: od 665000 zł do 900000 zł Powierzchnia : od 56 m2 do 76 m2
Chcę otrzymywać powiadomienia o nowych ofertach
- Wypromuj ogłoszenie
- Zgłoś naruszenie
- Drukuj ulotkę
- Edytuj/usuń ogłoszenie
- Udostępnij ogłoszenie
- Dodaj na Facebook
































