Mieszkanie Wrocław Wrocław-Krzyki, Jagodno, Stanisława Drabika
Wrocław Pokaż na mapie ›
Dodane: Poniedziałek, 02 Marzec, 2026 04:31
780 000 zł
12000 zł/m2
Szczegóły ogłoszenia
- Kategoria: Mieszkania / Sprzedaż
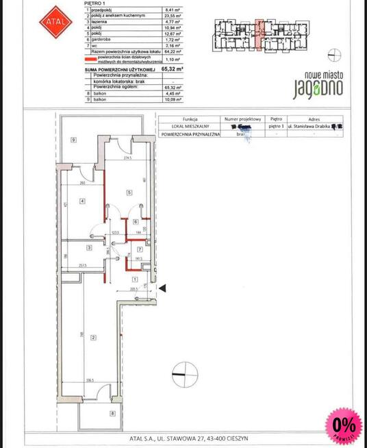
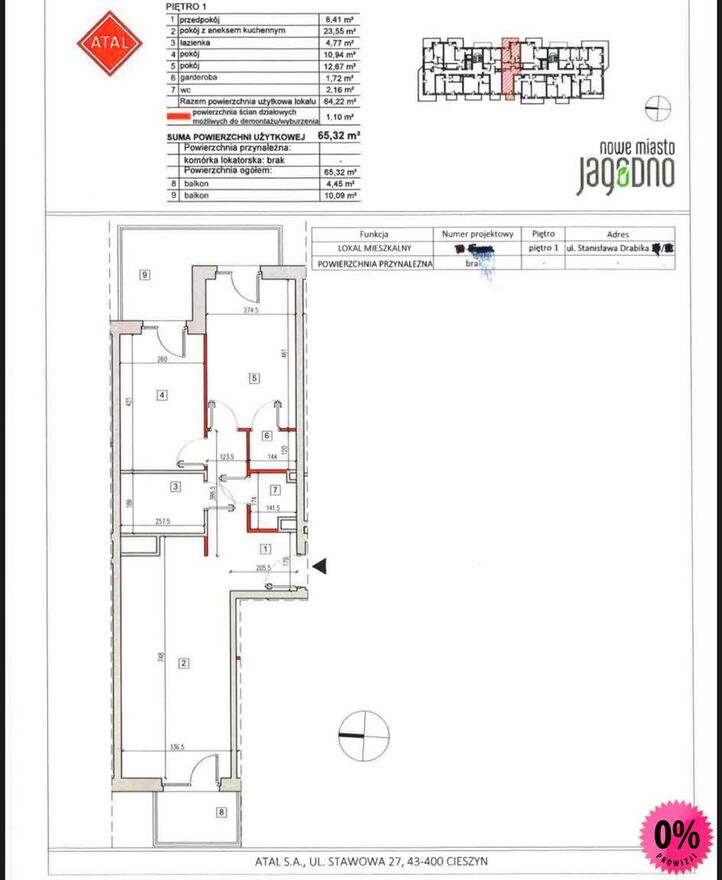
- Powierzchnia:65 m2
- Liczba pokoi:3 pokoje
- Zabudowa:Apartamentowiec
- Piętro :1 piętro
- Liczba pięter:5 pięter
- Rynek:Wtórny
- Rok budowy:2023
- Sprzedaż:Pośrednik
- Cena: 780 000 zł / 12000 zł/m2
Opis oferty
NA SPRZEDAŻ: Nowoczesne 3-pokojowe mieszkanie z 2 balkonami na Jagodnie!Zapraszam do zapoznania się z ofertą sprzedaży nowego, przestronnego mieszkania o powierzchni 65,43 m, zlokalizowanego w dynamicznie rozwijającej się dzielnicy Wrocławia-Jagodno (Krzyki). To idealna propozycja dla osób ceniących komfort, nowoczesne rozwiązania oraz doskonałą lokalizację. Opis mieszkania: Powierzchnia: 65,43 m, Salon z aneksem kuchennym i jadalnią: 23,55 m, Pokój 1: 12,67 m, Pokój 2: 10,94 m, Łazienka: 4,77 m, WC: 2,16 m, Garderoba: 1,72 m Przedpokój: 8,41 m. 2 duże balkony (4,45 m i 10 m), wyjście z każdego pokoju! Piętro: 1/5 (winda, szeroka klatka schodowa) Standard deweloperski możliwość własnej aranżacji Nowoczesne okna 3-szybowe z izolacją akustyczną. Antywłamaniowe drzwi Gerda klasy RC2.
Atuty nieruchomości: Nowoczesne osiedle z szerokimi alejkami i zielenią. Cicha i spokojna okolica, idealna dla rodzin. Doskonała komunikacja szybki dojazd do centrum i AOW Bliskość sklepów, restauracji, szkół i przedszkoli. Tylko 5 km do Aquaparku Wrocław i toru kartingowego i 3 km do centrum handlowego z siłownią.
Dodatkowe udogodnienia: miejsce postojowe w garażu podziemnym (35 000 zł), wjazd windą bezpośrednio na poziom -1.
Cena: Mieszkanie: 780 000 zł + 2 miejsca postojowe: 70 000 zł (obligatoryjnie).
Mieszkanie to idealne rozwiązanie dla rodzin, par lub inwestorów szukających nieruchomości w jednej z najbardziej perspektywicznych lokalizacji Wrocławia.
BN Open House, tel: 601 - pokaż numer telefonu -
Bez prowizji.
Zapraszam do kontaktu i na prezentację!
Treść niniejszego ogłoszenia nie stanowi oferty handlowej w rozumieniu Kodeksu Cywilnego.
Oferta wysłana z programu IMO dla biur nieruchomości
Numer oferty: 16736
Powiadom o podobnych ogłoszeniach
Lokalizacja: Wrocław
Kategoria: Nieruchomości » Mieszkania » Sprzedaż
Cena: od 663000 zł do 897000 zł Powierzchnia : od 55 m2 do 75 m2
Chcę otrzymywać powiadomienia o nowych ofertach
- Wypromuj ogłoszenie
- Zgłoś naruszenie
- Drukuj ulotkę
- Edytuj/usuń ogłoszenie
- Udostępnij ogłoszenie
- Dodaj na Facebook






























