Mieszkanie Wrocław Psie Pole, Zakrzów, Odolanowska

Dodane: Wtorek, 21 Październik, 2025  16:09
949 000 zł
12325 zł/m2

Szczegóły ogłoszenia

  • Kategoria: Mieszkania / Sprzedaż
  • Powierzchnia:77 m2
  • Liczba pokoi:4 pokoje
  • Zabudowa:Blok
  • Tech. budowy:Inne
  • Piętro :Parter
  • Liczba pięter:4 piętra
  • Rynek:Pierwotny
  • Sprzedaż:Pośrednik

Opis oferty

PRZESTRZENNE MIESZKANIE Z OGRODEM W CICHEJ OKOLICY

Brak prowizji i podatku PCC

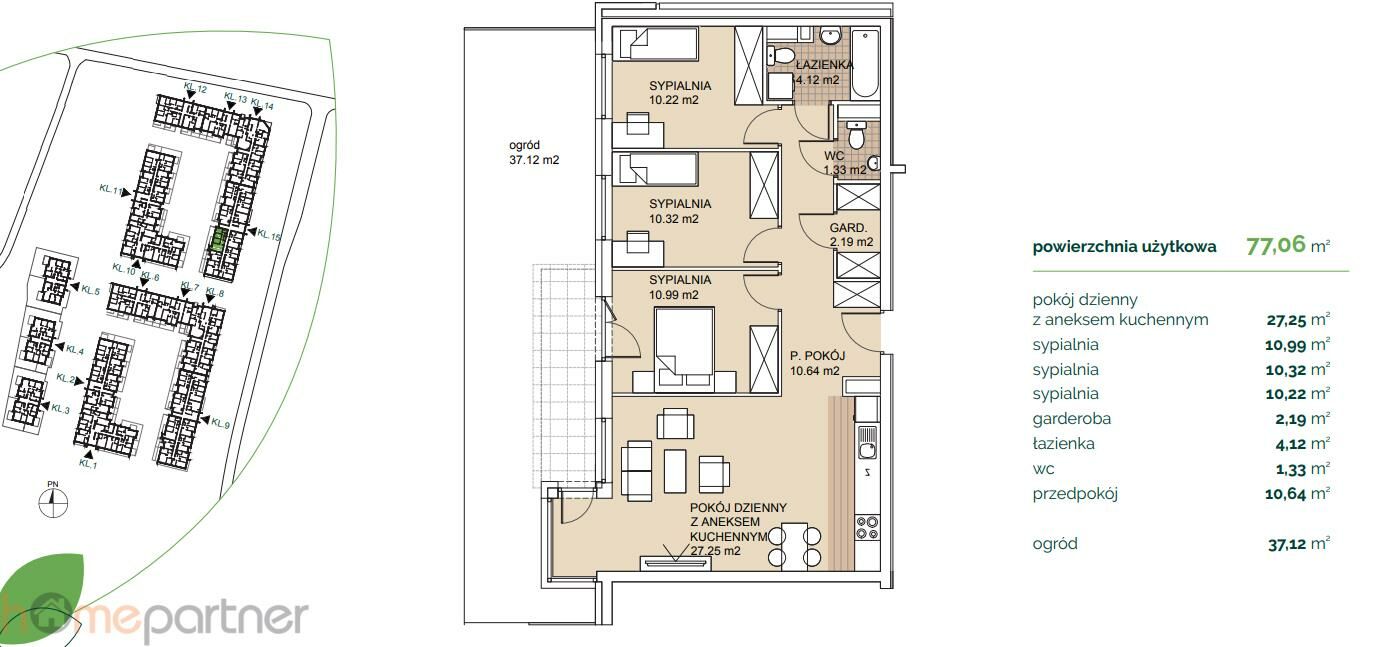
Na sprzedaż mieszkanie o powierzchni 77,06 m2 znajdujące się na parterze inwestycji na wrocławskim Psim Polu.

Mieszkanie gotowe do odbioru.

Mieszkanie składa się z:
- pokoju dziennego z aneksem kuchennym 27,25 m2
- sypialnia 10,99 m2
- sypialnia 10,32 m2
- sypialnia 10,22 m2
- garderoba 2,19 m2
- łazienka 4,12 m2
- wc 1,33 m2
- przedpokój 10,64 m2
- ogród 37,12 m2

Ekspozycja zachodnia.

INWESTYCJA

Jest to innowacyjna inwestycja mieszkaniowa położona we Wrocławiu. Zlokalizowane w spokojnej okolicy, osiedle to oferuje nie tylko nowoczesne mieszkania, ale także bogate otoczenie zielone, które sprzyja relaksowi i aktywnemu stylowi życia. Inwestycja ta stanowi doskonałe miejsce dla rodzin, par i osób ceniących sobie kontakt z przyrodą.
Osiedle oferuje różnorodność mieszkań, dostosowanych do różnych potrzeb i preferencji mieszkańców. Mieszkania te są nowocześnie zaprojektowane, z dbałością o funkcjonalność i estetykę.
Podsumowując, inwestycja ta, to nie tylko nowoczesne mieszkania, ale także kompleksowa koncepcja życia miejskiego, która łączy w sobie komfort, naturę i doskonałą lokalizację we Wrocławiu. Duża liczba miejsc postojowych oraz pomieszczenie na rowery i wózki dziecięce. Dodatkowo oferujemy możliwość zakupu komórek lokatorskich oraz przynależnego miejsca postojowego.

LOKALIZACJA I KOMUNIKACJA

Szybki dostęp do węzła autostradowego i obwodnicy

W bliskiej okolicy stacja PKP Psie Pole oraz PKP Zakrzów oraz parkingi Park&Ride

- linie autobusowe: D, 130, 111, 150

W pobliżu zaplecze handlowo-usługowe i rekreacyjne, 18 minut pieszo do Biedronki i 20 do Lidla. Nieopodal liczne mniejsze sklepy i punkty usługowe. Dogodny dojazd do Centrum Handlowego Korona około 8 minut samochodem, 5,6 km do obwodnicy.

W odległości około 10 minut spacerem powstaje nowy aquapark przy ul. Wilanowskiej

Ogromną zaletą lokalizacyjną jest bliskość pięknych terenów zieleni z jeziorkami i terenami spacerowymi - Parku Pawłowickiego i Parku Szczodre.

To przyjazne otoczenie dla zwolenników aktywnego wypoczynku, z dala od miejskiego zgiełku.

ZALETY OFERTY:

- dostępne od zaraz
- bliskość pięknych terenów zieleni - Parku Pawłowickiego i Parku Szczodre
- przestrzenny rozkład
- ogród
- szybki dostęp do węzła autostradowego i obwodnicy

W ofercie również inne powierzchnie mieszkań.

Możliwość zakupu miejsca postojowego w garażu podziemnym ( 29 000 zł) lub miejsca zewnętrznego (19 000 zł) i komórek do wybranych mieszkań (4 000 zł/m2).

Zapraszamy do kontaktu w celu uzyskania dodatkowych informacji oraz umówienia się na bezpłatną prezentację nieruchomości: Tel. +48 889 - pokaż numer telefonu -
Feel free to contact us, talk and see the apartment. For more information please call us Tel. +48 889 - pokaż numer telefonu - .
Por favor contáctenos para conocer más sobre la oferta y ver el apartamento. Podemos ayudar con todos los trámites. Para más información por favor llámanos +48 889 - pokaż numer telefonu - .
www.home-partner.com.pl

Treść niniejszego ogłoszenia nie stanowi oferty handlowej w rozumieniu Kodeksu Cywilnego.

Oferta wysłana z programu IMO dla biur nieruchomości

Numer oferty: 19697
Powiadom o podobnych ogłoszeniach
Lokalizacja: Wrocław
Kategoria: Nieruchomości » Mieszkania » Sprzedaż
Cena: od 806500 zł do 1091500 zł Powierzchnia : od 65 m2 do 89 m2

Chcę otrzymywać powiadomienia o nowych ofertach

Uzupełnij adres e-mailWpisz poprawny adres e-mail
Wyślij wiadomość

Wyślij wiadomość

Na Lento.pl od 08 sie 2013
Strona użytkownika
  • Wypromuj
  • Zgłoś naruszenie
  • Drukuj ulotkę
  • Edytuj/usuń
Wyczyść historię

Udostępnij ogłoszenie

Udostępnij na FacebookUdostępnij na X Kopiuj link do ogłoszenia

Dodaj notatkę

Opis musi być krótszy niż 250 znaków