Mieszkanie 4pok. o pow 74,99m2 z balkonem/ Żerniki Strachowicka
Wrocław / Fabryczna Pokaż na mapie ›
Dodane: Piątek, 13 Luty, 2026 09:56
869 884 zł
11755 zł/m2
Szczegóły ogłoszenia
- Kategoria: Mieszkania / Sprzedaż
- Powierzchnia:74 m2
- Liczba pokoi:4 pokoje
- Zabudowa:Blok
- Piętro :2 piętro
- Liczba pięter:3 piętra
- Rynek:Pierwotny
- Rok budowy:2026
- Sprzedaż:Pośrednik
- Cena: 869 884 zł / 11755 zł/m2
Opis oferty
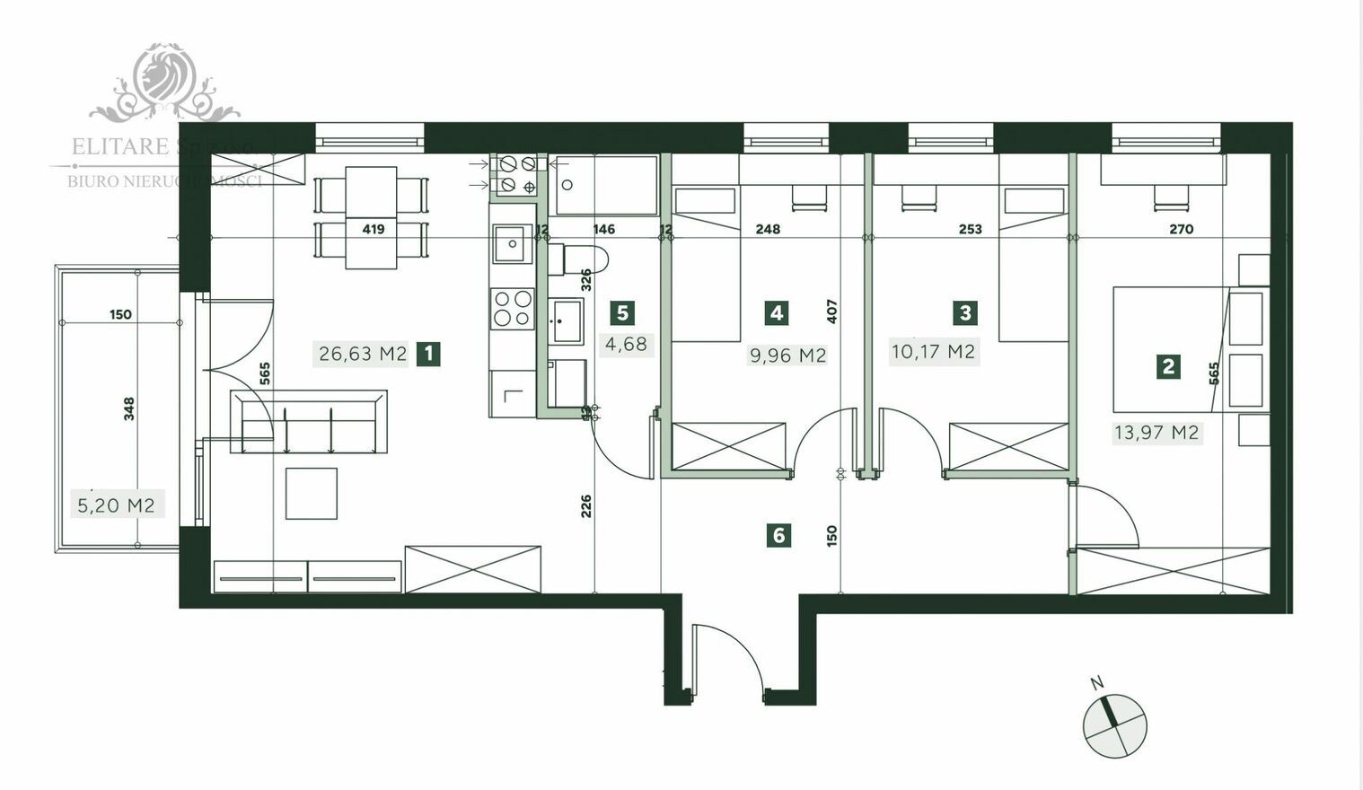
Rozkładowe, duże 4 pokojowe mieszkanie o powierzchni 74,99m2 z balkonem opow. 5,2m2 na zielonych, spokojnych Żernikach w zachodniej części Wrocławia.Mieszkanie ma pow. 74,99m2 znajduje się na 2 piętrze w 3 piętrowym bloku z windą. Główna część mieszkania stanowi salon o pow. 26,63m2 z kuchnią w aneksie, z salonu wyjście balkon o pow. 5,2m2 z widokiem na korony drzew i otwarte tereny, w mieszkaniu mamy dodatkowo trzy oddzielne pokoje o pow. 13,97m2, 10,17m2 i 9,96m2, mamy też łazienkę z toaletą o pow. 4,68m2 i przedpokój.
Mieszkanie jest dwustronne, narożne z ekspozycją północną i zachodnią, w bloku mamy jedną nowoczesną kotłownie gazową z indywidualnym opomiarowaniem zużycia ciepła na każdym mieszkaniu, a w częściach wspólnych zastosowano energooszczędne rozwiązania, takie jak panele słoneczne, zmniejszające koszty eksploatacji budynku.
W opcjach dodatkowych do mieszkania zakupić można miejsce postojowe naziemne w cenie 25tyś i/lub komórkę lokatorską w cenie 5000/m2. Liczba miejsc postojowych i komórek jest ograniczona więc ich dostępność i możliwość zakupu uzgadniania jest przed prezentacją.
Elegancki apartamentowiec idealnie wpisujący się w okolice z zieloną elewacją oraz wewnętrznymi ogrodami. Połączenie nowoczesnych rozwiązań technologicznych z naturalnym pięknem otoczenia daje mieszkańcom poczucie bliskości z przyrodą na co dzień, a jednocześnie zaledwie 20 minut od tętniącego życiem centrum Wrocławia. Mieszkańcy mogą cieszyć się bliskością restauracji, sklepów i miejsc rozrywki, a jednocześnie odpoczywać w zaciszu zielonych terenów osiedla. Tuż obok znajduje się Żernicki Park Sportu i Rekreacji idealne tereny dla aktywnych mieszkańców.
Świetna infrastruktura komunikacyjna umożliwia szybki i wygodny dostęp do każdej części miasta, a bliskość przystanków autobusowych sprawia, że podróżowanie staje się wyjątkowo komfortowe.
Inwestycja jest w trakcie realizacji z terminem na 30.04.2026– mieszkanie przekazywane do 31.05.2025 w stanie deweloperskim do własnej aranżacji. Dostępne są jeszcze mniejsze 2 i 3 pokojowe mieszkania zapraszam do kontaktu zainteresowanych klientów.
Zakup bezpośrednio od dewelopera bezpieczną umową notarialną deweloperską (bez PCC i bez prowizji).
Ania Cieślak- Doradca klienta
Zadzwoń, napisz maila
tel. 535 - pokaż numer telefonu -
@
Nr oferty 11 /AC
Zamieszczone na naszych stronach informacje nie stanowią oferty w rozumieniu Kodeksu Cywilnego, a dane w nich zawarte mają jedynie charakter informacyjny.
OFERTA CENOWA AKTUALNA NA DZIEŃ 12.02.2026 I OBOWIĄZUJE DO DNIA 12.02.2026
Sprawdź zainteresowanie tym ogłoszeniem
Wyświetlenia
Data dodania
Ostatnio widziany
Obserwujących
Wysłane zapytania
Odsłony telefonu
Powiadom o podobnych ogłoszeniach
Lokalizacja: Wrocław
Kategoria: Nieruchomości » Mieszkania » Sprzedaż
Cena: od 739500 zł do 1000500 zł Powierzchnia : od 63 m2 do 85 m2
Chcę otrzymywać powiadomienia o nowych ofertach
- Wypromuj ogłoszenie
- Zgłoś naruszenie
- Drukuj ulotkę
- Edytuj/usuń ogłoszenie
- Udostępnij ogłoszenie
- Dodaj na Facebook
































