Lokal usługowy w pobliżu Aquaparku na Borowskiej
Wrocław Pokaż na mapie ›
Odświeżone: Wtorek, 25 Listopad, 2025 09:48
379 000 zł
Szczegóły ogłoszenia
- Kategoria: Biura i lokale / Sprzedaż
- Przeznaczenie:Inne przeznaczenie
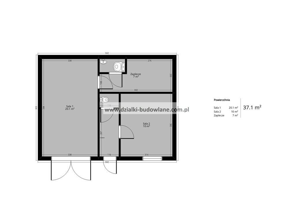
- Powierzchnia:37 m2
- Sprzedaż:Pośrednik
- Cena: 379 000 zł
Opis oferty
Lokal usługowy 37 m.kw. w pobliżu Aquaparku na Borowskiej. Małylokal 37 metrów za 379.000 zł.
Ogrzewanie miejskie.
Wejście bezpośrednio z ulicy.
Można podzielić na dwa osobne lokale z niezależnymi wejściami.
Wysoki sufit = 4 metry.
Może służyć jako sklep, biuro, usługi.
37 sq m commercial space near the Aquapark on Borowska Street. Small
37 sq m unit for PLN 379,000.
City heating.
Entrance directly from the street.
Can be divided into two separate premises with independent entrances.
High ceiling = 4 meters.
It can be used as a shop, office, or service.
Więcej ofert na www.dzialki-budowlane.com.pl
Lokalizacja jest tylko przybliżona. W celu uzyskania dokładnego
adresu prosimy o kontakt z biurem nieruchomości.
Wykonujemy pełną analizę działek. Możesz zlecić nam analizę
ofert spoza naszej bazy. Przeanalizujemy każdą działkę w Polsce
pod kątem możliwości zabudowy, dostępu do mediów, dostępu do
drogi. Zagrożeń powodziowych oraz terenów na których położona
jest nieruchomość.
Oferty z naszej bazy przeanalizowaliśmy więc masz pewność co
kupujesz, a koszt mieści się już w umowie pośrednictwa.
Dla obcych działek koszt wynosi 500 zł za analizę 3 dowolnie
wskazanych nieruchomości.
Zapraszam do kontaktu telefonicznego, ponieważ mamy wiele innych
ofert nieruchomości.
Przedstawiona oferta cenowa ma charakter informacyjny, nie stanowi
oferty handlowej w rozumieniu Art.66 par.1 Kodeksu Cywilnego.
Sprawdź zainteresowanie tym ogłoszeniem
Wyświetlenia
Data dodania
Ostatnio widziany
Obserwujących
Wysłane zapytania
Odsłony telefonu
Powiadom o podobnych ogłoszeniach
Lokalizacja: Wrocław
Kategoria: Nieruchomości » Biura i lokale » Sprzedaż
Cena: od 322000 zł do 436000 zł Powierzchnia : od 31 m2 do 43 m2
Chcę otrzymywać powiadomienia o nowych ofertach
- Wypromuj ogłoszenie
- Zgłoś naruszenie
- Drukuj ulotkę
- Edytuj/usuń ogłoszenie
- Udostępnij ogłoszenie
- Dodaj na Facebook

















