Dwupoziomowe 4pok.mieszkanie z 2 balkonami/Maślice
Wrocław / Fabryczna Pokaż na mapie ›
Dodane: Piątek, 30 Styczeń, 2026 15:45
724 259 zł
10201 zł/m2
Szczegóły ogłoszenia
- Kategoria: Mieszkania / Sprzedaż
- Powierzchnia:71 m2
- Liczba pokoi:4 pokoje
- Zabudowa:Blok
- Piętro :2 piętro
- Liczba pięter:2 piętra
- Rynek:Pierwotny
- Rok budowy:2024
- Sprzedaż:Pośrednik
- Cena: 724 259 zł / 10201 zł/m2
Opis oferty
OFERTA OD DEWELOPERA BEZ PROWIZJI DLA BIURA I PODATKU PCC 2%!!!Wrocław Fabryczna Maślice – duże mieszanie, 2 pokojowe z antresolą z balkonem i loggią! Blok z windą z poziomu garaży.
OPIS NIERUCHOMOŚCI
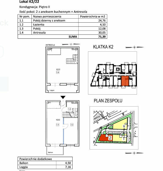
Mieszkanie położone jest na 2 piętrze w 2 piętrowym bloku z windą. Powierzchnia mieszkania to 71,75m2, na którą składa się pokój dzienny z kuchnią w aneksie o pow. 24,81 m2, z salonu wyjście na balkon o powierzchni 4,5 m2. W mieszkaniu na pierwszym poziomie znajduje się oddzielna sypialnia o powierzchni 12,16 m2. Na tym poziomie znajduje się łazienka o powierzchni 4,67 m2 oraz schody prowadzące nas na drugi poziom mieszkania – antresole o powierzchni 30,11m2, którą można zaadoptować na kolejną sypialnię lub garderobę. Z antresoli wyjście na drugi zabudowany balkon o powierzchni 7,16 m2 (loggia).
Ogrzewanie centralne , gazowe.
Dodatkowo do mieszkania dokupić należy (obowiązkowo):
- miejsce w garażu podziemnym cena 34.100 zł
Mieszkanie realizowane w stanie deweloperskim do samodzielnego wykończenia.
OSIEDLE
Kameralna 2 piętrowa zabudowa z estetycznie wykonaną elegancko wyglądającą elewacją. W inwestycji znajduje się garaż podziemny z miejscami postojowymi, a każdy lokal w budynku posiada balkon, taras lub przestronny ogródek. Układy mieszkań zostały zaprojektowane w sposób ergonomiczny i przemyślany. Styl, komfort oraz jakość wykonania sprawiły, że pierwszy i kolejne etapy tej inwestycji stały się docenionym miejscem zarówno na inwestycje we własne mieszkanie lub mieszkanie do wynajmu.
KOMUNIKACJA
Lokalizacja Przystani Królewieckiej to wrocławskie Maślice przy ulicy Królewieckiej. Jest to jeden z najbardziej zielonych terenów Wrocławia, który gwarantuje stały kontakt z naturą, W okolicy są trasy biegowe i rowerowe, kąpielisko i miejsce do grillowania. W najbliższej okolicy znajduje się infrastruktura społeczna, Biedronka 5 minut spacerem CH N- Park Maślicka oraz przystanek autobusowy w odległości 2 minut spacerem od inwestycji.
Zapraszam do kontaktu w celu przygotowania oferty / umówienia się na prezentacje – Kupujący nie płaci prowizji.
Zapewniam
- profesjonalną obsługę, gwarantowaną wieloletnim doświadczeniem w branży nieruchomości-możliwość bezpłatnej rezerwacji mieszkania
- kompleksowe wsparcie na każdym etapie transakcji
- gwarancję bezpiecznego zakupu
- oszczędność czasu
-pomoc w uzyskaniu kredytu na najlepszych warunkach
- kompleksowe doradztwo
Ania Kamuda- Doradca klienta
tel. 535 - pokaż numer telefonu -
@
Nr oferty 15_ETAP3_K222/AK
Zamieszczone na naszych stronach informacje nie stanowią oferty w rozumieniu Kodeksu Cywilnego, a dane w nich zawarte mają jedynie charakter informacyjny.
OFERTA CENOWA AKTUALNA NA DZIEŃ 30.01-2026 I OBOWIĄZUJE DO DNIA 30.01-2026
Powiadom o podobnych ogłoszeniach
Lokalizacja: Wrocław
Kategoria: Nieruchomości » Mieszkania » Sprzedaż
Cena: od 615500 zł do 833000 zł Powierzchnia : od 60 m2 do 82 m2
Chcę otrzymywać powiadomienia o nowych ofertach
- Wypromuj ogłoszenie
- Zgłoś naruszenie
- Drukuj ulotkę
- Edytuj/usuń ogłoszenie
- Udostępnij ogłoszenie
- Dodaj na Facebook
































