Bezpośrednio 54m 3pok. klimatyzacja, blisko MPK
Wrocław / Fabryczna Pokaż na mapie ›
Dodane: Piątek, 31 Październik, 2025 16:49
745 000 zł
13796 zł/m2
Szczegóły ogłoszenia
- Kategoria: Mieszkania / Sprzedaż
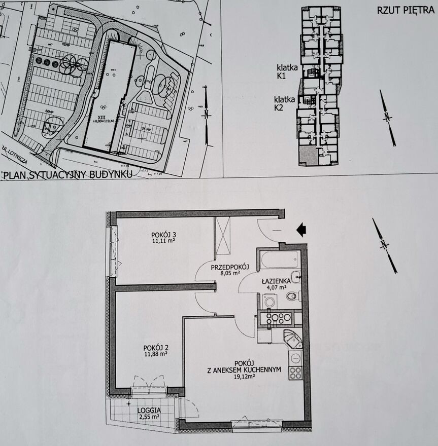
- Powierzchnia:54 m2
- Liczba pokoi:3 pokoje
- Zabudowa:Blok
- Piętro :6 piętro
- Liczba pięter:Wieżowiec
- Rynek:Pierwotny
- Rok budowy:2016
- Sprzedaż:Pośrednik
- Cena: 745 000 zł / 13796 zł/m2
Opis oferty
Oferta dodana za pomocą Multiportalu BeBrokerSprzedaż bezpośrednio od właściciela, bez pośrednika i prowizji!
Atuty nieruchomości:
- blok z 2016 r. z zadbanym terenem zielonym wokół, garażem podziemnym i rowerownią,
- 6. piętro = widoki na las, Ślężę, zachody słońca, loggia (płd-zach),
- 3 ustawne pokoje: salon z aneksem kuchennym 19 m2, sypialnia 11 m2, pokój dziecięcy/biurowy 11 m2,
- duży parking ze szlabanem = brak problemów z parkowaniem (możliwość parkowania kilku samochodów ze względu na brak jednego przynależnego do mieszkania miejsca parkingowego),
- świetna komunikacja: pętla Pilczyce pod domem - tramwaje linii 3, 10, 20, 22, 24, autobus 152 oraz nocny, blisko do AOW. Dojazd do Rynku tramwajem w ok. 20 min!
Okolica:
- szkoła i przedszkole 5 min pieszo,
- stadion Tarczyński Arena 10 min pieszo,
- liczne sklepy w pobliżu (hala targowa Tęcza, DH Astra, dyskonty, CH Magnolia),
- przychodnia zdrowia 10 min pieszo,
- tereny spacerowe wokół Stawu Pilczyckiego, park i las tuż za blokiem,
- w pobliżu ścieżki rowerowe i stadion klubu Parasol,
- liczne place zabaw na osiedlu, skatepark przy ul. Górniczej, plac kalisteniczny obok stawu.
Mieszkanie w pełni urządzone i gotowe do zamieszkania, nie wymaga żadnych remontów, ani inwestycji na wejściu.
Klimatyzacja i rolety wewnętrzne zaciemniające w salonie, smart TV, pełne AGD (płyta indukcyjna, zmywarka, piekarnik, lodówko-zamrażarka, pralka, suszarka bębnowa).
W pokojach pojemne szafy IKEA. W sypialni łóżko kontynentalne z zagłówkiem o szerokości 160 cm, w salonie rozkładana sofa, stół dębowy Woodica z opcją powiększenia na rodzinne przyjęcia.
Media miejskie, Internet światłowodowy. Niskie koszty utrzymania - czynsz przy rodzinie 2+2 wynosi ok. 600 zł/mies.!
Nieruchomość z dużym potencjałem zarówno dla rodziny, jak i pary/singla/studentów. Zapraszam do kontaktu!
Telefon: 515 - pokaż numer telefonu -
Sprawdź zainteresowanie tym ogłoszeniem
Wyświetlenia
Data dodania
Ostatnio widziany
Obserwujących
Wysłane zapytania
Odsłony telefonu
Powiadom o podobnych ogłoszeniach
Lokalizacja: Wrocław
Kategoria: Nieruchomości » Mieszkania » Sprzedaż
Cena: od 633500 zł do 857000 zł Powierzchnia : od 46 m2 do 62 m2
Chcę otrzymywać powiadomienia o nowych ofertach
- Wypromuj ogłoszenie
- Zgłoś naruszenie
- Drukuj ulotkę
- Edytuj/usuń ogłoszenie
- Udostępnij ogłoszenie
- Dodaj na Facebook
































