Apatrament hotelowy, kawalerka. wykończone pod klucz, dla studenta, pod wynajem
Wrocław / Krzyki Pokaż na mapie ›
Dodane: Wtorek, 30 Grudzień, 2025 20:52
506 484 zł
15828 zł/m2
Szczegóły ogłoszenia
- Kategoria: Mieszkania / Sprzedaż
- Powierzchnia:32 m2
- Liczba pokoi:2 pokoje
- Zabudowa:Dom
- Piętro :1 piętro
- Liczba pięter:4 piętra
- Rynek:Pierwotny
- Rok budowy:2023
- Sprzedaż:Pośrednik
- Cena: 506 484 zł / 15828 zł/m2
Opis oferty
Oferta bezpośrednio od dewelopera, bez PCC, bez prowizji od kupującego!!!Budynek posiada 4 piętra z podziemną halą garażową. Na parterze zlokalizowane są lokale handlowe wraz z recepcją. Powyżej powstały gotowe mieszkania o powierzchni od 25 m² do 74 m² oraz apartamenty inwestycyjne o powierzchni od 18 m² do 74 m².
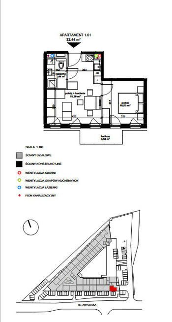
Zapraszam do zakupu apartamentu hotelowego o powierzchni 32,44m2. Kawalerka składa się z salonu z aneksem kuchennym o powierzchni 18,20m2, z salonu wyjście na balkon o powierzchni 3,29m2, sypialni o powierzchni 10,80m2 oraz łazienki o powierzchni 3,44m2.
Apartament jest pięknie wykończony "pod klucz", wyposażone w sprzęt AGD, gotowe do zamieszkania lub wynajęcia od zaraz. Do ceny należy doliczyć wyposażenie dodatkowe apartamentu oraz wyposażenie hotelowe w wysokości 44 772,00 zł brutto/ 36 400,00 zł netto.
W budynku znajdują się trzy klatki schodowe oraz cichobieżne windy, które pozwalają na swobodne przemieszczanie się pomiędzy piętrami. Z myślą o zmotoryzowanych zaprojektowano parking w garażu podziemnym, który posiada 168 miejsc postojowych, a na terenie inwestycji powstało 66 naziemnych miejsc postojowych oraz stojaki rowerowe
OBLIGATORYJNY ZAKUP MIEJSCA POSTOJOWEGO W GARAŻU w cenie od 40tyś. Wykończone pod klucz apartamenty inwestycyjne to znakomity cel biznesowy oraz idealne rozwiązanie dla pracodawców, którzy poszukują zakwaterowania dla swoich pracowników. Cena podana jest wartością BRUTTO i zawiera w sobie 23% VAT -atrakcyjna oferta dla Inwestora. Wykończone pod klucz, gotowe do zamieszkania lub wynajęcia od zaraz.
Zakres wyposażenia:
• szafa – 2 sztuki (w sypialni oraz przedpokoju),
• łóżko z materacem,
• szafki nocne – 2 sztuki,
• biurko/toaletka,
• sofa rozkładana,
• stół i 4 krzesła,
• stolik kawowy,
• telewizor wraz z płytą meblową za TV,
• szafka RTV,
• zmywarka,
• piekarnik,
• wymiana lodówki podblatowej na 120 cm,
• zasłony,
• lampa podłogowa,
• zamek elektroniczny.
+ wyposażenie hotelowe, czyli m.in. żelazko, komplet sztućców, serwis (talerze, miski), komplet garnków, patelnia, kosze na śmieci, wieszak, dozownik na mydło, wieszak na ubrania, wodoodporny ochraniacz na materac, deska do prasowania, suszarka na ubrania
Doskonała lokalizacja dla miłośników aktywnego spędzania wolnego czasu, ponieważ znajduje się w bezpośrednim sąsiedztwie Wrocławskiego Toru Wyścigów Konnych oraz w pobliżu Parku Południowego oraz Parku Klecińskiego. W odległości 3 km znajduje się największe centrum handlowe w Polsce - Aleja Bielany. Inwestycja jest bardzo dobrze skomunikowana z pozostałą częścią Wrocławia poprzez komunikację miejską, a bliskość Alei Karkonoskiej pozwala na szybki dojazd do autostrady A4 oraz Autostradowej Obwodnicy Wrocławia.
Zapraszam do kontaktu i prezentacji - do umówienia prezentacji wymagane jest podanie podstawowych danych do weryfikacji obsługi (imię i nazwisko, telefon oraz mail).
Kupujący nie płaci prowizji
Zapewniam
- profesjonalną obsługę, gwarantowaną wieloletnim doświadczeniem w branży nieruchomości-możliwość bezpłatnej rezerwacji apartamentu
- kompleksowe wsparcie na każdym etapie transakcji
- gwarancję bezpiecznego zakupu
- oszczędność czasu
-pomoc w uzyskaniu kredytu na najlepszych warunkach
- kompleksowe doradztwo
Anna Kamuda- Doradca klienta
tel. 535 - pokaż numer telefonu -
@
Nr oferty 01/AK
Zamieszczone na naszych stronach informacje nie stanowią oferty w rozumieniu Kodeksu Cywilnego, a dane w nich zawarte mają jedynie charakter informacyjny.OFERTA CENOWA AKTUALNA NA DZIEŃ 30-12-2025 I OBOWIĄZUJE DO DNIA 30-12-2025
Powiadom o podobnych ogłoszeniach
Lokalizacja: Wrocław
Kategoria: Nieruchomości » Mieszkania » Sprzedaż
Cena: od 430500 zł do 582500 zł Powierzchnia : od 27 m2 do 37 m2
Chcę otrzymywać powiadomienia o nowych ofertach
- Wypromuj ogłoszenie
- Zgłoś naruszenie
- Drukuj ulotkę
- Edytuj/usuń ogłoszenie
- Udostępnij ogłoszenie
- Dodaj na Facebook
































